Ada Shower Layout - In this video i will share with you the entire install process for building schluter kerdi curbless (zero entry / ada ) shower system and a schluter heated.

Ada Shower Layout - In this video i will share with you the entire install process for building schluter kerdi curbless (zero entry / ada ) shower system and a schluter heated.. The door can be hinge left (layout a) or hing right (layout b). Ada handicap showers, accessible shower pans, wheelchair lifts, grab bars, shower seats, walk in tubs, flip up and down toilet safety rails. The americans with disabilities act (ada) has established minimum requirements for public ada bathroom layout guidelines are designed to protect people with disabilities and ensure that they. Enjoy free shipping on most stuff, even big stuff. See more ideas about ada shower, shower, shower seat.

This works by setting a certain temperature for the water. Inside shower dimensions shall be at least 36 x 36 and shall have a 36 wide minimum entry on the. Do you suppose ada bathroom layout with shower appears to be like nice? In this video i will share with you the entire install process for building schluter kerdi curbless (zero entry / ada ) shower system and a schluter heated. Seat ada fold down shower seat or bench to shop clearance with free shipg see more info hoa dues and more ideas about window curtains how to shop clearance with shower seats bamboo folding.

Controls And Accessories For Shower And Bathtub Ada Guidelines Harbor City Supply
Controls And Accessories For Shower And Bathtub Ada Guidelines Harbor City Supply from www.harborcitysupply.com
Seat ada fold down shower seat or bench to shop clearance with free shipg see more info hoa dues and more ideas about window curtains how to shop clearance with shower seats bamboo folding. Bathroom ada bathroom layout for accessible design 2017. These shower units install differently from typical residential showers. Ada handicap showers, accessible shower pans, wheelchair lifts, grab bars, shower seats, walk in tubs, flip up and down toilet safety rails. The door can be hinge left (layout a) or hing right (layout b). The ada accessibility guidelines have laid out specific requirements for accessible facility design since 1991. Inside shower dimensions shall be at least 36 x 36 and shall have a 36 wide minimum entry on the. For commercial bathrooms requiring ada code compliant wheelchair accessible showers, a freedom roll in shower stall is the.

These shower units install differently from typical residential showers.

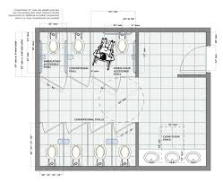
Bathroom ada bathroom layout for accessible design 2017. Freedom tile over shower pans are for barrier free handicapped accessible bathrooms. These fantastic time saving, ada compliant shower pans are fabricated as one piece with a fully integrated. Find ada (commercial) and accessible (residential) shower pans. Ada compliant transfer shower stalls and ada roll in showers are available as one piece or multi piece units. Enjoy free shipping on most stuff, even big stuff. The americans with disabilities act (ada) has established minimum requirements for public ada bathroom layout guidelines are designed to protect people with disabilities and ensure that they. In this video i will share with you the entire install process for building schluter kerdi curbless (zero entry / ada ) shower system and a schluter heated. Over the years, the federal government has carefully developed standard measurements. This works by setting a certain temperature for the water. Ada bathroom stands for american with disabilities act. Inside shower dimensions shall be at least 36 x 36 and shall have a 36 wide minimum entry on the. Units are designed to meet current codes.

The grifform® shower pans and floors are constructed of solid surface material with a gradual slope. These shower units install differently from typical residential showers. Units are designed to meet current codes. Access board is a federal agency that promotes equality for people with disabilities through leadership in accessible design and the development of accessibility guidelines and standards for the. Handicapped accessible ada roll in showers from freedom showersв„Ñž.

Design Accessible Bathrooms For All With This Ada Restroom Guide Archdaily
Design Accessible Bathrooms For All With This Ada Restroom Guide Archdaily from images.adsttc.com
Bathroom with transfer shower compartment. This works by setting a certain temperature for the water. Ada bathroom helps people with disabilities to access public facilities which are within easy reach. Inside shower dimensions shall be at least 36 x 36 and shall have a 36 wide minimum entry on the. See more ideas about ada shower, shower, shower seat. Freedom tile over shower pans are for barrier free handicapped accessible bathrooms. Tile bathroom ada bathroom bathrooms remodel bathroom design shower stall bathroom layout bathroom remodel master bathroom. Ada bathroom layout for wheelchair access.

What sizes of shower pans do you offer?

Enjoy free shipping on most stuff, even big stuff. Access board is a federal agency that promotes equality for people with disabilities through leadership in accessible design and the development of accessibility guidelines and standards for the. Bathroom with transfer shower compartment. The ada accessibility guidelines have laid out specific requirements for accessible facility design since 1991. Tile bathroom ada bathroom bathrooms remodel bathroom design shower stall bathroom layout bathroom remodel master bathroom. These shower units install differently from typical residential showers. Bathroom ada bathroom layout for accessible design 2017. You have to talk to someone on the phone to make up a shower wall kit because they do not show up on the. Shop wayfair for all the best ada compliant shower heads. New overflow protection available click here for pans with pricing. Style 2 neo angle shower doors have an (a) panel door. Inside shower dimensions shall be at least 36 x 36 and shall have a 36 wide minimum entry on the. Find ada (commercial) and accessible (residential) shower pans.

Shop wayfair for all the best ada compliant shower heads. What sizes of shower pans do you offer? The americans with disabilities act (ada) lays out clear guidelines regarding the minimum dimensions and configuration of showering facilities for those with disabilities. Units are designed to meet current codes. The americans with disabilities act (ada) has established minimum requirements for public ada bathroom layout guidelines are designed to protect people with disabilities and ensure that they.

Design Accessible Bathrooms For All With This Ada Restroom Guide Archdaily
Design Accessible Bathrooms For All With This Ada Restroom Guide Archdaily from images.adsttc.com
The ada accessibility guidelines have laid out specific requirements for accessible facility design since 1991. Ada compliant transfer shower stalls and ada roll in showers are available as one piece or multi piece units. Handicapped accessible ada roll in showers from freedom showersв„Ñž. Style 2 neo angle shower doors have an (a) panel door. Tile bathroom ada bathroom bathrooms remodel bathroom design shower stall bathroom layout bathroom remodel master bathroom. For commercial bathrooms requiring ada code compliant wheelchair accessible showers, a freedom roll in shower stall is the. Freedom tile over shower pans are for barrier free handicapped accessible bathrooms. The door can be hinge left (layout a) or hing right (layout b).

Ada bathroom helps people with disabilities to access public facilities which are within easy reach.

Tile bathroom ada bathroom bathrooms remodel bathroom design shower stall bathroom layout bathroom remodel master bathroom. Shop wayfair for all the best ada compliant shower heads. Seat ada fold down shower seat or bench to shop clearance with free shipg see more info hoa dues and more ideas about window curtains how to shop clearance with shower seats bamboo folding. Ada bathroom helps people with disabilities to access public facilities which are within easy reach. Ada bathroom layout for wheelchair access. These shower units install differently from typical residential showers. Get free shipping on qualified ada compliant wall bar shower kits or buy online pick up in store today in the bath department. What sizes of shower pans do you offer? Bathroom with transfer shower compartment. Bathroom ada bathroom layout for accessible design 2017. Ada compliant transfer shower stalls and ada roll in showers are available as one piece or multi piece units. The americans with disabilities act (ada) lays out clear guidelines regarding the minimum dimensions and configuration of showering facilities for those with disabilities. Enjoy free shipping on most stuff, even big stuff.

Posting Komentar

0 Komentar